+385 91 25 50 100 | 91 20 40 800 | prodaja@delacco.si

  • Kontakt
  • Obvestila
  • Vprašalnik za viličarje
  • Vprašalnik za dvižne mize
  • HR
  • BA
  • RS
  • EU
Vse kategorije
  • Konzolna dvigala
    • Stenski konzolni žerjavi
    • Samostoječi konzolni žerjavi
    • Portalna dvigala
    • Dvižne traverze
    • Mostni žerjavi
  • Hidravlične dvižne mize
    • Hidravlične nizkodvižne mize
    • Stacionarne visokodvižne mize
    • Nizkoprofilne dvižne mize
    • Dvižni vozički
  • Viličarji
    • Ročni viličarji
    • Ročni visokodvižni viličarji
    • Škarjasti viličarji
    • Viličarji s tehtnico
    • Specialni viličarji
    • Elektro paletni viličarji
    • Električni visokodvižni viličarji
    • Viličarji z protiutežjo
  • Dvigala
    • Ročna dvigala
      • Ročna verižna dvigala
      • Verižna dvigala z ročico
      • Zobniške dvigalke
      • Žični potegi
    • Ročni vozički
    • Električna dvigala
  • Pakirni materiali
    • Pleteni pakirni trakovi
    • Kompozitni pakirni trakovi
    • Tekstilni pakirni trakovi
    • Sponke za pakirni trak
    • Napenjalci za pakirne trakove
    • Odvijalci za pakirne trakove
  • Tovorna oprema
    • Kamionske gurtne
    • Povezovalne verige
    • Žerjavne vilice
  • ENDO balanserji
Moj račun
Vpiši se Registriraj se

Lost password?

Geslo bo poslano na vaš elektronski naslov.

Vaši osebni podatki bodo uporabljeni za podporo vašemu iskustvu na tej spletni strani, za upravljanje dostopa do vašega računa in v druge namene, opisane v naši pravilnik o zasebnosti.

0 0
0 Nakupovalna košarica

V košarici ni izdelkov.

Nazaj v trgovino
Nakupovalna košarica (0)
Delni znesek: 0,00 €

Prikaži košaricoBlagajna

  • AKCIJA
  • Na zalogi
  • Ponudba viličarjev
  • Dvižne mize

    Stacionarne nizkodvižne mize

    Razprodaja 20%
    HPSU hidravlična nakladalna rampa 2700kg | hidravlične nakladalne ploščadi
    Quick View V košarico

    Hidravlična nakladalna rampa 2700kg

    SKU: HPSU 6.020,00 € Izvirna cena je bila: 6.020,00 €.4.816,00 €Trenutna cena je: 4.816,00 €. brez DDV V košarico Dodaj za primerjavo
    Razprodaja 20%
    Nakladalna dvižna miza, nakladalna dvižna platforma 2700kg
    Quick View V košarico

    Nakladalne dvižne mize 2700kg

    SKU: HPSU2700 6.020,00 € Izvirna cena je bila: 6.020,00 €.4.816,00 €Trenutna cena je: 4.816,00 €. brez DDV V košarico Dodaj za primerjavo
    do 10%
    Hidravlične dvižne mize z enojnimi škarjami | Miza za dviganje | Dvižne mize po naročilu | Nosilnost do 6 ton
    Quick View Izberite možnosti Ta izdelek ima več različic. Možnosti lahko izberete na strani izdelka

    Hidravlične dvižne mize z enojnimi škarjami 1000kg

    SKU: JHS1000 1.242,00 € – 2.403,00 €Cenovni razpon: od 1.242,00 € do 2.403,00 € brez DDV Izberite možnosti Ta izdelek ima več različic. Možnosti lahko izberete na strani izdelka Dodaj za primerjavo
    do 10%
    Hidravlične dvižne mize z enojnimi škarjami | Miza za dviganje | Dvižne mize po naročilu | Nosilnost do 6 ton
    Quick View Izberite možnosti Ta izdelek ima več različic. Možnosti lahko izberete na strani izdelka

    Hidravlične dvižne mize z enojnimi škarjami 2000kg

    SKU: JHS2000 1.422,00 € – 2.502,00 €Cenovni razpon: od 1.422,00 € do 2.502,00 € brez DDV Izberite možnosti Ta izdelek ima več različic. Možnosti lahko izberete na strani izdelka Dodaj za primerjavo
    do 10%
    Hidravlične dvižne mize z enojnimi škarjami | Miza za dviganje | Dvižne mize po naročilu | Nosilnost do 6 ton
    Quick View Izberite možnosti Ta izdelek ima več različic. Možnosti lahko izberete na strani izdelka

    Stacionarne dvižne mize 4000kg

    SKU: JHS4000 1.674,00 € – 3.312,00 €Cenovni razpon: od 1.674,00 € do 3.312,00 € brez DDV Izberite možnosti Ta izdelek ima več različic. Možnosti lahko izberete na strani izdelka Dodaj za primerjavo
    do 10%
    Hidravlične dvižne mize z enojnimi škarjami | Miza za dviganje | Dvižne mize po naročilu | Nosilnost do 6 ton
    Quick View Izberite možnosti Ta izdelek ima več različic. Možnosti lahko izberete na strani izdelka

    Dvižne mize po naročilu | Nosilnost do 6 ton

    SKU: JHS6000 3.303,00 € – 5.130,00 €Cenovni razpon: od 3.303,00 € do 5.130,00 € brez DDV Izberite možnosti Ta izdelek ima več različic. Možnosti lahko izberete na strani izdelka Dodaj za primerjavo
    do 20%
    DELACCO JHS2000D hidravlicna dvizna miza z dvojnimi horizontalnimi škarjami
    Quick View Izberite možnosti Ta izdelek ima več različic. Možnosti lahko izberete na strani izdelka

    Hidravlične dvižne mize 2000kg 4000kg 8000kg

    SKU: JHS-D 2.871,00 € – 4.550,00 €Cenovni razpon: od 2.871,00 € do 4.550,00 € brez DDV Izberite možnosti Ta izdelek ima več različic. Možnosti lahko izberete na strani izdelka Dodaj za primerjavo

    Stacionarne visokodvižne mize

    do 10%
    Hidravlične dvižne mize z dvojnimi škarjami - škarjasta dvigala | Miza za dvig
    Quick View Izberite možnosti Ta izdelek ima več različic. Možnosti lahko izberete na strani izdelka

    Hidravlične dvižne mize z dvojnimi škarjami

    SKU: DHS 1.638,00 € – 3.006,00 €Cenovni razpon: od 1.638,00 € do 3.006,00 € brez DDV Izberite možnosti Ta izdelek ima več različic. Možnosti lahko izberete na strani izdelka Dodaj za primerjavo
    do 10%
    hidravlične dvižne mize s trojnimi škarjami - škarjasta dvigala | Miza za tovor
    Quick View Izberite možnosti Ta izdelek ima več različic. Možnosti lahko izberete na strani izdelka

    Dvižne mize s trojnimi škarjami

    SKU: THS 3.087,00 € – 11.880,00 €Cenovni razpon: od 3.087,00 € do 11.880,00 € brez DDV Izberite možnosti Ta izdelek ima več različic. Možnosti lahko izberete na strani izdelka Dodaj za primerjavo
    do 10%
    hidravlične dvižne mize s trojnimi škarjami - škarjasta dvigala | Miza za dvigovanje
    Quick View Izberite možnosti Ta izdelek ima več različic. Možnosti lahko izberete na strani izdelka

    Dvižne mize s štirimi škarjami

    SKU: CHS 3.825,00 € – 8.730,00 €Cenovni razpon: od 3.825,00 € do 8.730,00 € brez DDV Izberite možnosti Ta izdelek ima več različic. Možnosti lahko izberete na strani izdelka Dodaj za primerjavo

    Nizkoprofilne dvižne mize

    do 10%
    hidravlična dvižna nizkoprofilna miza U oblike | miza za dvigovanje palete
    Quick View Izberite možnosti Ta izdelek ima več različic. Možnosti lahko izberete na strani izdelka

    Hidravlična dvižna nizkoprofilna miza – U oblike

    SKU: UHS 1.890,00 € – 2.745,00 €Cenovni razpon: od 1.890,00 € do 2.745,00 € brez DDV Izberite možnosti Ta izdelek ima več različic. Možnosti lahko izberete na strani izdelka Dodaj za primerjavo
    do 10%
    nizkoprofilne dvižne mize z rampo - škarjasta dvigala
    Quick View Izberite možnosti Ta izdelek ima več različic. Možnosti lahko izberete na strani izdelka

    Nizkoprofilne dvižne mize z rampo

    SKU: NPS 1.971,00 € – 2.835,00 €Cenovni razpon: od 1.971,00 € do 2.835,00 € brez DDV Izberite možnosti Ta izdelek ima več različic. Možnosti lahko izberete na strani izdelka Dodaj za primerjavo
    zelo nizkoprofilne dvižne mize z rampo - škarjasto dvigalo | Hidravlična miza
    Quick View Izberite možnosti Ta izdelek ima več različic. Možnosti lahko izberete na strani izdelka

    Nizkoprofilne dvižne mize 500-1500kg

    SKU: NPSU 2.680,00 € – 3.350,00 €Cenovni razpon: od 2.680,00 € do 3.350,00 € brez DDV Izberite možnosti Ta izdelek ima več različic. Možnosti lahko izberete na strani izdelka Dodaj za primerjavo
Seznam želja 0
0 Moj seznam želja

Prikaži seznam želja Dodaj vse v košarico

Primerjaj 0
0 Moja primerjava

Poglej Primerjaj

Prednaročila
Izpostavljeni izdelki
Dostava
  • Hidravlične dvižne mize
  • Konzolna dvigala
  • Pakirni materiali
  • Viličarji
  • ENDO balanserji
Seznam želja 0
Primerjaj 0
Sign in

+385 91 25 50 100 | 91 20 40 800 | prodaja@delacco.si

0 0
0 Nakupovalna košarica

V košarici ni izdelkov.

Nazaj v trgovino
Nakupovalna košarica (0)
Delni znesek: 0,00 €

Prikaži košaricoBlagajna

Domov Konzolna dvigala Stenski konzolni žerjavi

Zglobni stenski žerjav 125-500kg 2-5m

Sale
DELACCO Zglobni stenski žerjav (ZZD) 125-500kg 2-5m | Stenski žerjavi | Konzolni žerjavi | Stensko dvigalo
  • DELACCO Zglobni stenski žerjav (ZZD) 125-500kg 2-5m | Stenski žerjavi | Konzolni žerjavi | Stensko dvigalo
Imate vprašanje? Kontaktiraj nas!
Opis

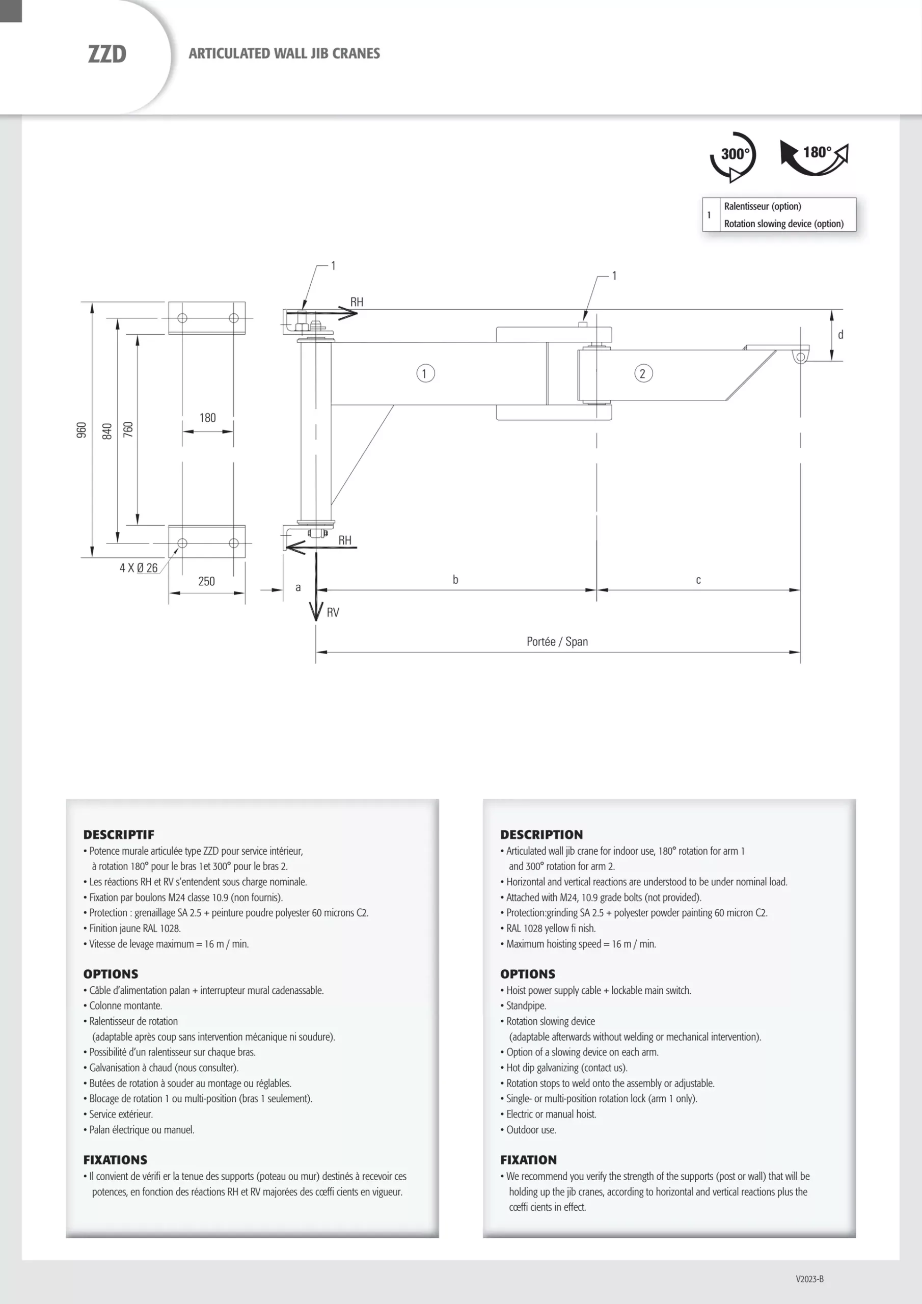
Zglobni stenski žerjav (ZZD) – Stensko dvigalo – Osnovne specifikacije:

  • nosilnost: 125kg, 250kg, 500kg
  • razpon: 2000mm (2m), 2500mm (2,5m), 3000mm (3m), 3500mm (3,5m), 4000mm (4m), 4500mm(4,5m), 5000mm (5m)

 

Zglobni stenski žerjav (ZZD) – Stensko dvigalo – Opis i opcije:

  • konzolni žerjav
  • delovni kot 180°(1.krak), 300° (2.krak)
  • na ta tip žerjava ni mogoče namestiti motornega pogona
  • možnosti: ročni ali električni žerjav in vzmetna regulacija
  • stenski žerjav je opremljen s standardnimi nosilci
  • pritrditev z vijaki M20 razreda 10.9 (niso priloženi)
  • končna obdelava RAL 1028

 

  • Možnosti:
    • Dvižni pripomočki in vzmetna regulacija:
      • drsno držalo za kabel
    • Elektrika:
      • stikalo s ključavnico
    • Pritrjevanje:
      • nastavljiv komplet za pritrditev stebra
    • Mehanika:
      • zavornik rotacije
      • zaklepanje na pozicijo INOX

 

Žerjav se izdeluje izključno po naročilu.

Zunanje povezave:

  • BOLHA
Informacije o pošiljanju

SPLOŠNE INFORMACIJE

Vsa plačana naročila so praviloma pripravljena še isti ali najkasneje naslednji delovni dan. Prevoznik prevzame in dostavi blago samo ob delavnikih.

DELACCO Slovenija pošilja blago v vse sosednje države.

Za vsa naročila, poslana na Hrvaško, Slovenijo, Bosno in Hercegovino, Srbijo, Črno goro, Kosovo in Makedonijo, je izbrani prevoznik Gebruder Weiss.

Naročilo bo odposlano šele po razvidnem plačilu na računu.

Takoj po dostavi vam na vaš elektronski naslov pošljemo potrdilo o odpremi blaga.

DELACCO Slovenija ne odgovarja za škodo, nastalo med transportom blaga.

Predviden čas dostave:

  • Hrvaška in Slovenija - od 1 do 2 delovna dneva
  • Srbija, Bosna in Hercegovina, Črna Gora, Kosovo in Makedonija - od 3 do 4 delovne dni

Za vse dodatne informacije v zvezi z odpremo blaga nas kontaktirajte.

Dodatne informacije
Teža Ni na voljo
Dimenzije Ni na voljo
Nosilnost

125kg, 250kg, 500kg

Razpon

2000mm, 2500mm, 3000mm, 3500mm, 4000mm, 4500mm, 5000mm

Zglobni stenski žerjav 125-500kg 2-5m

2.320,00 € – 3.330,00 €Cenovni razpon: od 2.320,00 € do 3.330,00 € brez DDV

* izdelke lahko naročite ali jih dodate na povpraševanje (na povpraševanje običajno odgovorimo še isti delovni dan)

* specifikacije in cene se lahko občasno spremenijo, zato pred naročilom preverite

  • 125kg
  • 250kg
  • 500kg
  • 2000mm
  • 2500mm
  • 3000mm
  • 3500mm
  • 4000mm
  • 4500mm
  • 5000mm
Počisti
Avansno plačilo 50% na izdelek
Dodaj na seznam želja
Dodaj za primerjavo
SKU: ZZD
Kategorija: Stenski konzolni žerjavi
Oznak: DELACCO ZZD, Konzolna dvigala, Konzolni žerjavi, Stenska dvigala, Stenska konzolna dvigala, Stenski konzolni žerjavi, Stenski žerjavi, Zidna dvigala, Zidna konzolna dvigala, Zidni konzolni žerjavi, Zidni žerjavi

Podobni izdelki

do 10%
DELACCO RSD | Steberni konzolni žerjav 150kg | razpon 2-12m | Konzolna dvigala 360
Quick View Izberite možnosti Ta izdelek ima več različic. Možnosti lahko izberete na strani izdelka

Steberni konzolni žerjav 150kg – obračalni kot 360°

SKU: RSD150 2.320,00 € – 6.760,00 €Cenovni razpon: od 2.320,00 € do 6.760,00 € brez DDV Izberite možnosti Ta izdelek ima več različic. Možnosti lahko izberete na strani izdelka Dodaj za primerjavo
do 10%
DELACCO AZDS Aluminijasti stenski žerjav 63-2000kg 2-8m | Stenski žerjavi | Konzolni žerjavi | Stensko dvigalo
Quick View Izberite možnosti Ta izdelek ima več različic. Možnosti lahko izberete na strani izdelka

Aluminijasti stenski žerjav 63-2000kg 2-8m

SKU: AZDS 1.780,00 € – 5.600,00 €Cenovni razpon: od 1.780,00 € do 5.600,00 € brez DDV Izberite možnosti Ta izdelek ima več različic. Možnosti lahko izberete na strani izdelka Dodaj za primerjavo
do 10%
DELACCO NZDK Zidno dvigalo 50-100kg 2-5m | Stenski žerjavi | Konzolni žerjavi | Stensko dvigalo
Quick View Izberite možnosti Ta izdelek ima več različic. Možnosti lahko izberete na strani izdelka

Zidno dvigalo (NZDK) 50-100kg 2-5m

SKU: NZDK 1.110,00 € – 1.660,00 €Cenovni razpon: od 1.110,00 € do 1.660,00 € brez DDV Izberite možnosti Ta izdelek ima več različic. Možnosti lahko izberete na strani izdelka Dodaj za primerjavo
do 10%
DELACCO SZZD Zglobni konzolni žerjav 50-1000kg 2-5m | Stenski žerjavi | Konzolni žerjavi | Stensko dvigalo | Konzolna dvigala | Zglobno dvigalo
Quick View Izberite možnosti Ta izdelek ima več različic. Možnosti lahko izberete na strani izdelka

Zglobni konzolni žerjav 50-1000kg 2-5m

SKU: SZZD 3.650,00 € – 5.910,00 €Cenovni razpon: od 3.650,00 € do 5.910,00 € brez DDV Izberite možnosti Ta izdelek ima več različic. Možnosti lahko izberete na strani izdelka Dodaj za primerjavo
do 10%
DELACCO RSD | Steberni konzolni žerjav 150kg | razpon 2-12m | Konzolna dvigala 360
Quick View Izberite možnosti Ta izdelek ima več različic. Možnosti lahko izberete na strani izdelka

Steberni konzolni žerjav 1600kg – obračalni kot 360°

SKU: RSD1600 3.350,00 € – 17.520,00 €Cenovni razpon: od 3.350,00 € do 17.520,00 € brez DDV Izberite možnosti Ta izdelek ima več različic. Možnosti lahko izberete na strani izdelka Dodaj za primerjavo
do 10%
DELACCO RSD | Steberni konzolni žerjav 150kg | razpon 2-12m | Konzolna dvigala 360
Quick View Izberite možnosti Ta izdelek ima več različic. Možnosti lahko izberete na strani izdelka

Steberni konzolni žerjav 10000kg – obračalni kot 360°

SKU: RSD10000 10.100,00 € – 19.110,00 €Cenovni razpon: od 10.100,00 € do 19.110,00 € brez DDV Izberite možnosti Ta izdelek ima več različic. Možnosti lahko izberete na strani izdelka Dodaj za primerjavo
do 10%
DELACCO RSD | Steberni konzolni žerjav 150kg | razpon 2-12m | Konzolna dvigala 360
Quick View Izberite možnosti Ta izdelek ima več različic. Možnosti lahko izberete na strani izdelka

Steberni konzolni žerjav 2500kg – obračalni kot 360°

SKU: RSD2500 3.780,00 € – 26.100,00 €Cenovni razpon: od 3.780,00 € do 26.100,00 € brez DDV Izberite možnosti Ta izdelek ima več različic. Možnosti lahko izberete na strani izdelka Dodaj za primerjavo
Stenski žerjav 50-100kg 2-5m

1.160,00 € – 1.520,00 €Cenovni razpon: od 1.160,00 € do 1.520,00 € brez DDV

DELACCO LZDS Stenski konzolni žerjav 50-100kg 2-5m | Stenski žerjavi | Konzolni žerjavi | Stensko dvigalo | Konzolno dvigalo | Stenski žerjav
DELACCO SZZD Zglobni konzolni žerjav 50-1000kg 2-5m | Stenski žerjavi | Konzolni žerjavi | Stensko dvigalo | Konzolna dvigala | Zglobno dvigalo
Zglobni konzolni žerjav 50-100...

3.650,00 € – 5.910,00 €Cenovni razpon: od 3.650,00 € do 5.910,00 € brez DDV

PROFESIONALNA DVIŽNA TEHNIKA

DELACCO d.o.o., Čabdin 53, 10450 Jastrebarsko

prodaja@delacco.si | +385 91 25 50 100 | +385 91 20 40 800

INFORMACIJE

O nas
Obvestila
Kako se registrirati

PLAČILO IN DOSTAVA

Kako nakupovati
Načini plačila
Dobava

SPLOŠNI POGOJI

Pogoji poslovanja
Pogoji za reklamacije in vračila
Varstvo zasebnosti

Avtorske pravice © 2026 DELACCO d.o.o.

Trgovina
0 Seznam želja
0 Košarica
Prijava
Imate vprašanje? Kontaktirajte nas!